Завантаження...

Гаражні, промислові, відкатні, розпашні ворота

ТОВ "Покрівельно-Фасадний Центр" пропонує Вам новий вид послуг — монтаж та обслуговування комірних систем різного типу. Працюючи безпосередньо із виробником, ми гарантуємо своїм клієнтам високий рівень сервісу та реалізуємо виконання " замовлення під ключ ", тобто замовлення із виміром, доставкою, монтажем, консультацією з догляду та подальшого гарантійного обслуговування.

У ТОВ "Покрівельно-Фасадний Центр" безкоштовні не лише консультації менеджерів, а й виїзд замірника та консультації технічних фахівців. Ми пропонуємо широкий вибір матеріалів та оптимальне співвідношення ціна/якість.

ТОВ "Покрівельно-Фасадний Центр" пропонує продукцію, яка виготовлена ​​на устаткуванні від найкращих світових виробників та при створенні якої використано унікальні розробки конструкторського відділу.

Гаражні секційні ворота

Секційні автоматичні ворота від компанії ТОВ "Покрівельно-Фасадний Центр" — це оптимальний вибір. Ми займаємося монтажем, гарантійним та післягарантійним обслуговуванням воріт.

У нас ви можете купити ворота, ми допоможемо розрахувати та підібрати оптимальний варіант. Тільки якісні секційні ворота та якісний монтаж.

Серед великої кількості гаражних воріт слід виділити секційні ворота. Найбільш широке застосування вони отримали в гаражах, автомийках, складах, ангарах і тваринницьких комплексах. Відмінною конструкційною особливістю секційних воріт вважається механізм відкриття, за допомогою якого ворота відкриваються вертикально всередину приміщення. При цьому, ковзаючи спеціальними напрямними, полотно воріт по дотичній переміщається в горизонтальне положення і надійно фіксується під стельовим перекриттям. Так як у відкритому положенні полотно воріт розташовується горизонтально під стелею — воно не займає корисної площі ні перед гаражем, ні всередині нього, що особливо актуально у випадках, коли ворота розміщуються на лінії забудови та гаражний отвір виходить відразу на проїжджу частину. Секційні ворота монтуються з внутрішньої сторони дверного отвору, завдяки чому, на відміну від воріт, вони не зменшують ширину проїзду у світлі, що особливо приваблює власників великогабаритних автомобілів. Крім цього, для відкриття воріт у зимовий час не потрібно попереднього розчищення в'їзду від снігу, що дуже актуально в російських умовах.

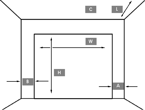
Вимоги до отвору

Основною вимогою є рівна площина стіни зсередини приміщення по периметру отвору та відповідність розмірів площин, необхідних для кріплення напрямних та торсійних механізмів.

А також несуча здатність матеріалів, з яких виконана стіна, що обрамляє отвір, і стеля. Якщо стіна, в якій знаходиться отвір, виготовлена ​​з таких матеріалів як піноблоки, пустотіла цегла або сендвіч-панель, то отвір потрібно обрамити металом, а в деяких випадках доведеться встановлювати металеву раму.

  • W — ширина отвору
  • H — висота отвору
  • C — притолока
  • A — відстань від правої стіни до отвору (min. 120 mm)
  • B — відстань від лівої стіни до отвору (min. 120 mm)
  • L — глибина стелі (L>H)

Секційні ворота забезпечені надійним та безпечним механізмом відкриття з функцією дистанційного керування, що дозволить вам відкривати гараж заздалегідь на підході (під'їзді) до нього. Механізм відрізняється низьким шумом та високою швидкістю відкривання полотна. Для ручного відкривання воріт механізм має торсіонні пружини, які компенсують вагу воріт і роблять процес ручного відкривання легким і комфортним.

Промислові ворота

У промислових секційних воротах компанії «Рітерна» вага полотна компенсується однією або декількома торсіонними пружинами. Технічні можливості виробництва дозволяють виготовити промислові ворота розмірами до 10 м за шириною та 11 м за висотою.

Конструкція секційних воріт

При виготовленні найбільш відповідальних елементів промислових секційних воріт використовують посилені комплектуючі з підвищеним ресурсом роботи. А для безпечної експлуатації воріт ми рекомендуємо встановлювати системи механічного блокування полотна при розриві пружин та обриві тросів.

Для приміщень з великою вологістю, наприклад, для мийок, при виробництві воріт можуть бути використані напрямні та фурнітура з нержавіючої сталі. Ворота, виконані з таких комплектуючих прослужать довше, оскільки ці елементи не піддаються корозії.

Відкатні ворота

Вже більше десяти років ми виробляємо і встановлюємо відкатні ворота і окремі хвіртки власного виробництва. Багаторічний досвід виробництва цих виробів гарантує високий рівень їхньої якості та тривалий термін служби. Для виготовлення воріт використовуємо консольні системи власного виробництва.

Ми пропонуємо своїм клієнтам консольні ворота з противагою. Ворота такої конструкції переміщуються вздовж двох роликових опор, встановлених з одного боку проїзду. При цьому у відкритому стані воріт проїзд залишається повністю вільним. На роботу консольних воріт значно менше впливають снігові наноси, що є актуальним для більшої частини території України. У закритому стані передній край полотна воріт розташовується на пастці, що дозволяє розвантажити роликові опори та збільшує їхній робочий ресурс.

Поряд з відкатними воротами може бути встановлена ​​хвіртка, що стоїть окремо. Полотно хвіртки обшивається і фарбується так само, як і полотно воріт. Хвіртка можна виготовити і встановити також і в тому випадку, якщо ворота взагалі не передбачені.

Розпашні ворота

Наша компанія виготовляє металеві розпашні ворота трьох типів: глухі (з обшивкою профнастилом з однієї або двох сторін), гратчасті та утеплені (із заповненням сендвіч-панеллю). Для автоматизації воріт використовуються тільки найкращі, перевірені часом, приводи та блоки керування.

Орні автоматичні ворота — один з поширених варіантів організації в'їзду, як на територію, так і в приміщення. Ворота можуть бути глухими, з обшивкою різними матеріалами, і прозорими — ґратчастими. Матеріал обшивки та малюнок грат визначається виключно Вашим бажанням і фантазією, а автоматичне управління дозволить легко відкрити розпашні ворота, не виходячи з машини.