Завантаження...

Ревізія з теплоізоляцією (0.5, 0.8, 1) нержавіюча Україна

від 877 грн./шт.
reviziya.jpg

Застосовується для перевірки та чищення димоходу.

Для ревізії використовується високоякісна нержавіюча сталь. При виготовленні комплектуючих деталей застосовується плазмове зварювання у середовищі інертного газу (аргон).

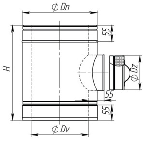
Параметри ревізії
Значення параметрів Dv, Dn, Dzv, H
Dv (мм)Dn (мм)Dzv (мм)Н (мм)Маса (кг)
1001601003331,94
1101801103332,26
1151801153332,22
1201801203332,18
1252001203332,60
1302001203332,56
1352001203332,51
1402001203332,48
1502201203332,86
1602201203332,74
1802501203333,30
2002601203333,30
2202801203333,58
2303001203334,04
2503201203334,34
3003601503334,92
3504201503335,77
4004601503336,03
4505201503337,26
5005601503337,41
5506201503338,74
60066015040010,69
65072018040012,36
70076018040012,29
75082018040014,16
80086018040013,96
90096018040015,65
1000106018040016,57
1340_logo1.png

Версія-люкс Україна

Системи вентиляції та димарі призначені для відведення димових газів, що утворюються в результаті роботи плит, печей, котлів та ін. Технологія, за якою виробляються димарі та системи вентиляції, залежить від умов їх експлуатації.Оскільки від характеристик матеріалів, що використовуються безпосередньо залежить ефективність і безпека роботи котлів, м...