Завантаження...

Труба оцинкована з теплоізоляцією в оцинкованому кожусі Україна

truba_3.jpg

Застосовується як основна частина димоходів та вентиляції.

Для виробництва труби використовується високоякісна оцинкована сталь. При виготовленні комплектуючих деталей застосовується плазмове зварювання у середовищі інертного газу (аргон).

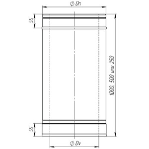
Параметри труби
Значення параметрів Dv, Dn
Dv (мм)Dn (мм)L = 1 (м), Маса (кг)L = 0,5 (м), Маса (кг)L = 0,25 (м), Маса (кг)
1001605,732,871,43
1101806,853,431,71
1151806,733,371,68
1201806,613,311,65
1252007,933,971,98
1302007,793,901,95
1352007,643,821,19
1402007,493,751,87
1502208,234,122,06
1602208,374,192,09
18025010,155,082,54
20026010,135,072,53
22028011,005,502,75
23030012,516,263,13
25032013,456,733,36
30036014,537,273,63
35042018,159,084,54
40046018,939,474,73
45052022,8711,445,72
50056023,3211,665,83
55062027,5813,796,90
60066032,2616,138,07
65072037,2018,609,30
70076037,4118,719,35
75082039,6719,849,92
80086042,5721,2910,64
90096047,7123,8611,93
1000106052,8726,4413,22
1340_logo1.png

Версія-люкс Україна

Системи вентиляції та димарі призначені для відведення димових газів, що утворюються в результаті роботи плит, печей, котлів та ін. Технологія, за якою виробляються димарі та системи вентиляції, залежить від умов їх експлуатації.Оскільки від характеристик матеріалів, що використовуються безпосередньо залежить ефективність і безпека роботи котлів, м...