Завантаження...
Універсальні багатоцільові твердопаливні котли серії КТ-1E на сьогоднішній день є безперечною альтернативою газовим та електричним котлам, відмінною їх особливістю є робота на твердих видах палива різного типу (вугілля, дрова, торф, паливні суміші, гранули, солома).
Можливість застосування недорого широкодоступного виду палива, коли традиційні джерела енергії недоступні або немає можливості застосувати їх для опалення приміщень (відсутність газопроводу), а зараз і дорожнеча традиційних енергоносіїв — ціна на які постійно зростає, робить застосування твердопаливних котлів економічно вигідним.
Основні переваги моделі KT-1E:
Котел на твердому паливі нового покоління, обладнані автоматикою та обладнані масою корисних функцій, відрізняються ще й зручністю експлуатації, а також привабливим дизайном.
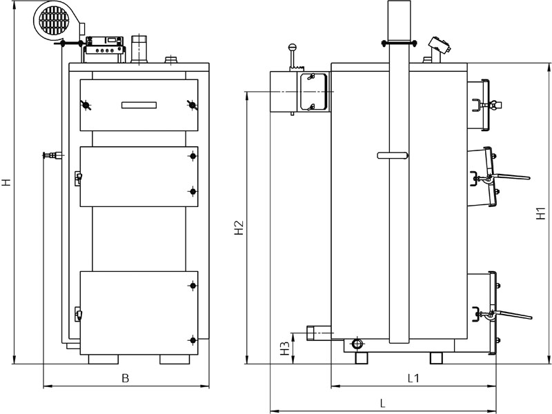
Технічні особливості казанів КТ-1Е. Сьогодні ця модель котлів на твердому паливі використовується не тільки для опалення житлових приміщень, а й для опалення майстерень, виробничих та торгових будівель. Допомагає у цьому оптимальний баланс між витратою паливних ресурсів та потужністю опалювальних котлів. Твердопаливні котли тривалого горіння серії КТ-1Е мають діапазон від 15 до 45 (кВт), максимальної потужності цілком вистачає для опалення приміщення площею 450 квадратних метрів. Такі параметри котлів на твердому паливі дозволяють робити одноразове завантаження палива розміром від 39 до 141 кілограмів на добу. Завдяки високоякісній котельні сталі P265GH (від 4 до 8 (мм)), з якої виготовляються котли на твердому паливі цієї серії можна бути впевненим у їх якості, тривалій експлуатації та надійності під час роботи. Конструкція котла на твердому паливі виконана таким чином, щоб створювати максимальний теплось (теплопередачу) та зручність при обслуговуванні.
Топка виконана у формі чотирикутника і внизу закінчується колосниковими гратами, які виготовлені з безшовних товстостінних труб, що робить її ще більш довговічною та практичною при обслуговуванні. Котли на твердому паливі тривалого горіння КТ-1Е мають у верхній частині обладнання конвекційні канали у формі полиць, така форма продовжує живучість котла і не створює конденсацію газів згоряння в цій частині обладнання. Підвищенню ККД котла багато в чому сприяє двополковий теплообмінник, а продовжує тривалість горіння одного завантаження твердого палива - температурний мікропроцесорний регулятор. Ревізійний люк, що знаходиться в передньому відсіку котла, дозволяє полегшити доступ до конвекційних каналів. Словом, кожна деталь та елемент у цій лінійці котлів на твердому паливі настільки продумані, що не можуть не викликати захоплення навіть у тих, кому довелося зіткнутися з подібним видом опалювального обладнання.
Конструкційні особливості котлів КТ-1Е:
![]() | ||||||
| Номінальна потужність котла, (кВт) | 15 | 20 | 24 | 33 | 38 | 45 |
| B, (мм) | 625 | 675 | 725 | 765 | 775 | 835 |
| H, (мм) | 1495 | 1535 | 1575 | 1660 | 1700 | 1730 |
| H1, (мм) | 1230 | 1270 | 1310 | 1360 | 1400 | 1430 |
| H2, (мм) | 1115 | 1150 | 1185 | 1230 | 1265 | 1285 |
| H3, (мм) | 130 | 130 | 130 | 130 | 130 | 130 |
| L, (мм) | 900 | 920 | 985 | 1090 | 1145 | 1205 |
| L1, (мм) | 675 | 675 | 710 | 800 | 850 | 880 |
| Номінальна потужність котла, (кВт) | 15 | 20 | 24 | 33 | 38 | 45 |
| Площа теплообмінника, (м2) | 1,8 | 2,1 | 2,4 | 3,0 | 3,3 | 3,8 |
| ККД, не менше, (%) | 81 | |||||
| Тривалість згоряння разового завантаження палива, (година) | 8 — 24 | |||||
| Розміри топки: | ||||||
| Глибина, (мм) | 350 | 350 | 390 | 480 | 530 | 560 |
| Ширина, (мм) | 320 | 370 | 420 | 440 | 450 | 510 |
| Об'єм, (дм3) | 43 | 55 | 76 | 105 | 127 | 157 |
| Водяна ємність котла, (л) | 74 | 81 | 95 | 116 | 128 | 144 |
| Вага казана без води, (кг) | 280 | 310 | 350 | 410 | 440 | 490 |
| Потрібна тяга топкових газів, (Па) | 20 — 25 | |||||
| Температура топкових газів на виході з казана, (°C) | 100 — 180 | |||||
| Рекомендована мінімальна температура води, (°C) | 58 | |||||
| Максимальна температура води, (°C) | 90 | |||||
| Номінальний (максимально робочий) тиск води, (МПа) | 0,15 | |||||
| Випробувальний тиск води, не більше, (МПа) | 0,30 | |||||
| Споживання електроенергії, не більше, (Вт) | 85 | 85 | 85 | 105 | 105 | 105 |
| Розміри завантажувальних дверцят: | ||||||
| Висота, (мм) | 220 | 220 | 220 | 220 | 220 | 220 |
| Ширина, (мм) | 320 | 370 | 370 | 370 | 370 | 370 |
| Приєднувальні (зовнішні) розміри бору, (мм) | 160x160 | 170x170 | 180x180 | 190x190 | 200x200 | 220x220 |
| Діаметр патрубків прямої та зворотної мережної води (Ду), (мм) | 50 | 50 | 50 | 50 | 50 | 50 |
| Рекомендовані параметри димоходу: | ||||||
| Площа перерізу, (см2) | 225 | 256 | 289 | 342 | 380 | 462 |
| Внутрішній діаметр, (мм) | 170 | 180 | 195 | 210 | 220 | 245 |
| Висота (мінімально допустима), (м) | 5 | 5 | 5 | 7 | 7 | 7 |
![]() | ![]() | ![]() | ![]() |
| Вугілля | Дрова | Торфобрикет | Євробрикет |