Завантаження...
Твердопаливні котли моделі КТ-3Е більш безпечні та вигідні ніж традиційні електричні, масляні та газові котли.
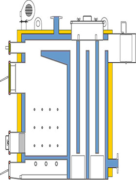
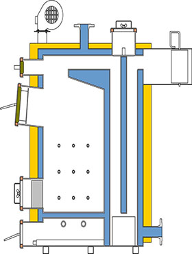
Конструкція котла на твердому паливі дозволяє ефективно, по максимуму, використовувати тепло при спалюванні різних видів палива, краще використовувати вугілля і дрова, але завдяки універсальності виробленої моделі так само ефективно можна використовувати деревні відходи, тирсу і торф'яні брикети, солому, завдяки цьому використовувати їх можна у різних умовах. У серії КТ-3Е використовується верхній метод спалювання палива, який є більш ефективним та безпечним з точки зору екології. Ще цей метод "верхнього" спалювання забезпечує великий ККД обладнання. Діапазон потужності варіюється від 14 — 350 (кВт), залежно від моделі твердопаливного казана. Разове добове завантаження палива, виходячи з технічних характеристик, знаходиться в межах від 26 — 730 (кг), що дозволяє опалювати площу від 100 — 3,5 тис. (м2). Весь процес горіння автоматизовано, за який відповідає автоматичний блок керування.
Конструкційні переваги та відмінності котлів КТ-3Е:
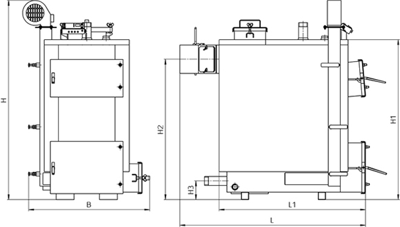
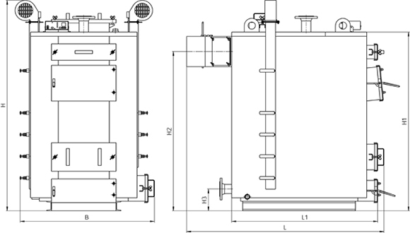
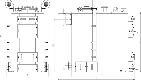
Котли потужністю від 14 до 97 (кВт) оснащені триканальним, а котли потужністю від 125 до 350 (кВт) п'ятиканальним теплообмінником, що ставить опалювальні котли моделі КТ-3Е в розряд унікальних котлів, що виробляються в Україні, оскільки аналогів їм немає;![]() | ![]() | ||||||||||
![]() | ![]() | ||||||||||
![]() | ![]() | ||||||||||
| Номінальна потужність котла, (кВт) | 14 | 25 | 46 | 80 | 97 | 125 | 150 | 200 | 250 | 300 | 350 |
| B, (мм) | 785 | 815 | 955 | 1085 | 1135 | 1190 | 1230 | 1390 | 1550 | 1665 | 1795 |
| H, (мм) | 1210 | 1340 | 1360 | 1745 | 1805 | 1785 | 1805 | 1915 | 2025 | 2075 | 2130 |
| H1, (мм) | 945 | 1075 | 1100 | 1485 | 1545 | 1490 | 1510 | 1620 | 1715 | 1765 | 1785 |
| H2, (мм) | 815 | 940 | 945 | 1320 | 1375 | 1305 | 1325 | 1410 | 1480 | 1510 | 1510 |
| H3, (мм) | 125 | 125 | 125 | 180 | 180 | 160 | 160 | 160 | 160 | 160 | 160 |
| L | 1170 | 1245 | 1450 | 1580 | 1745 | 2195 | 2335 | 2470 | 2605 | 2895 | 3125 |
| L1 | 965 | 985 | 1100 | 1180 | 1320 | 1750 | 1870 | 1920 | 1985 | 2215 | 2385 |
| Номінальна потужність котла, (кВт) | 14 | 25 | 46 | 80 | 97 | 125 | 150 | 200 | 250 | 300 | 350 |
| Площа теплообмінника, (м2) | 2,3 | 3,1 | 4,2 | 6,7 | 7,5 | 11,9 | 13,0 | 16,5 | 21,3 | 24,6 | 26,7 |
| Разове завантаження палива, (кг) | 35 | 60 | 106 | 178 | 218 | 264 | 311 | 436 | 585 | 760 | 931 |
| ККД, не менше, (%) | 81 | ||||||||||
| Тривалість згоряння разового завантаження палива, (година) | 8 — 24 | ||||||||||
| Розміри топки: | |||||||||||
| глибина, (мм) | 380 | 400 | 510 | 540 | 640 | 700 | 780 | 790 | 830 | 920 | 1010 |
| ширина, (мм) | 320 | 370 | 510 | 620 | 640 | 670 | 710 | 870 | 1010 | 1120 | 1250 |
| обсяг, (дм3) | 39 | 67 | 118 | 198 | 242 | 293 | 346 | 485 | 650 | 845 | 1035 |
| Водяна ємність котла, (л) | 88 | 110 | 145 | 263 | 334 | 504 | 542 | 660 | 869 | 1088 | 1245 |
| Вага казана без води, (кг) | 310 | 380 | 500 | 860 | 1010 | 1420 | 1560 | 1860 | 2200 | 2800 | 3150 |
| Потрібна тяга топкових газів, (Па) | 23 — 30 | 45 — 50 | |||||||||
| Температура топкових газів на виході з казана, (°C) | 100 —180 | ||||||||||
| Рекомендована мінімальна температура води, (°C) | 58 | ||||||||||
| Максимальна температура води, (°C) | 90 | ||||||||||
| Номінальний (максимально робочий) тиск води, (МПа) | 0,15 | ||||||||||
| Випробувальний тиск води, не більше, (МПа) | 0,30 | ||||||||||
| Споживання електроенергії, не більше, (Вт) | 85 | 85 | 105 | 170 | 170 | 210 | 210 | 320 | 490 | 490 | 810 |
| Розміри завантажувальних дверцят: | |||||||||||
| Висота, (мм) | 220 | 220 | 240 | 260 | 300 | 300 | 320 | 320 | 320 | 320 | 320 |
| Ширина, (мм) | 320 | 370 | 370 | 400 | 400 | 450 | 500 | 600 | 600 | 650 | 650 |
| Приєднувальні (зовнішні) розміри бору, (мм) | 180x180 | 190x190 | 225x225 | 250x250 | 260x260 | 290x290 | 290x290 | 340x340 | 390x390 | 440x440 | 480x480 |
| Діаметр патрубків прямої та зворотної мережевої води (Ду), (мм) | 50 | 50 | 50 | 65 | 65 | 80 | 80 | 100 | 100 | 125 | 125 |
| Рекомендовані параметри димоходу: | |||||||||||
| Площа перерізу, (см2) | 296 | 332 | 462 | 586 | 635 | 795 | 795 | 1103 | 1460 | 1867 | 2228 |
| Внутрішній діаметр, (мм) | 195 | 205 | 245 | 275 | 285 | 320 | 320 | 375 | 435 | 490 | 535 |
| Висота (мінімально допустима), (м) | 5 | 5 | 7 | 7 | 7 | 8 | 9,5 | 11 | 12 | 13 | 13 |
![]() | ![]() | ![]() | ![]() |
| Вугілля | Дрова | Торфобрикет | Євробрикет |