Завантаження...
Котел опалювальний моделі КТ-2Е-SH є низькотемпературним котлом з автоматичною системою подачі палива в камеру топки.
Твердопаливний котел оснащений корпусом, що охолоджується водою, виконаним із сталевих листів. Безпроблемна експлуатація твердопаливного котла з гвинтовою подачею залежить від застосування палива. Правильний вибір типу та сорту палива гарантує не тільки економне використання палива (ефективне спалювання), а й зменшує час, витрачений на обслуговування котла.
Призначення — опалення виробничих об'єктів та приватних житлових будинків та підігріву побутової води у будь-яку пору року.
Комплектуються твердопаливні котли КТ-2Е SH такими агрегатами:
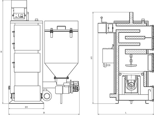
Сам корпус багатошаровий. Внутрішній шар — сталеві теплообмінники не менше 5 (мм) товщини. Чотирьохканальна секційна камера теплообмінника забезпечує рівень ККД до 83%. Зовні котел обшитий теплоізоляційним матеріалом і захищений металевим корпусом. Паливний бункер - це прямокутна ємність, виготовлена з металу. Вміщує велику кількість пелет. Зверху бункер оснащений кришкою, що забезпечує повну ізоляцію палива у бункері. Подача палива забезпечується шнеком. Шнек (равлик) — механізм, призначення якого транспортувати вантаж, переміщуючи його вздовж гвинтової осі, що обертається всередині труби, в так званому гвинтовому контейнері.
Твердопаливний котел на пелетах КТ-2Е SH має такі переваги:
Основна відмінність КТ-2Е SH від інших автоматичних твердопаливних котлів на пелеті, в тому, що робота керується вбудованим мікропроцесором, який, у свою чергу, регулює подачу нагрітого повітря вентилятором;Найголовніша перевага КТ-2Е SH не тільки висока продуктивність та ефективність, а й безпека роботи КТ-2Е SH. Завдяки встановленому механізму аварійного гасіння при виникненні будь-якої позаштатної ситуації, повному та тривалому відключенню електроенергії відбувається повне автоматичне відключення твердопаливного котла. Саме завдяки такій комплектації автоматичних твердопаливних котлів КТ-2Е SH обслуговування зведено до мінімуму. Необхідно періодично очищати котел від золи без відключення котла і завантажувати пелети в бункер.
У самій системі опалення температура відстежується налаштованим контролером і при виникненні різниці між фактичною та заданою температурою модулює подачу палива та надув нагрітого повітря. Разом з цим, за тривалої відсутності електроенергії, аварійний термостат сам погасить вогонь при попаданні його в шнек. Також при необхідності ви можете замовити як додаткове обладнання чавунні колосники та топити цей котел дровами, вугіллям або іншим паливом з ручним завантаженням.
Широкий асортимент пропонованих потужностей КТ-2Е SH дозволить вам вибрати твердопаливний котел із необхідним саме для вас рівнем продуктивності. Забезпечить вас якісним та безпечним теплом та гарячою водою весь опалювальний сезон, а за потреби і набагато довше.
![]() | ||||||||
| Потужність кВт | 17 | 25 | 38 | 50 | 62 | 75 | 95 | 120 |
| B | 1180 | 1180 | 1230 | 1320 | 1610 | 1650 | 1790 | 1730 |
| B1 | 590 | 590 | 610 | 660 | 750 | 760 | 830 | 940 |
| H | 1710 | 1770 | 1910 | 1860 | 1950 | 2000 | 2200 | 2200 |
| H1 | 1510 | 1570 | 1710 | 1860 | 1950 | 2000 | 2200 | 2200 |
| L | 1020 | 1080 | 1190 | 1240 | 1320 | 1410 | 1550 | 1620 |
| Номінальна потужність котла, (кВт) | 17 | 25 | 38 | 50 | 62 | 75 | 95 | 120 |
| Площа теплообмінника, (м2) | 2,5 | 2,9 | 3,9 | 4,6 | 5,3 | 6,2 | 7,8 | 9,8 |
| ККД, не менше, (%) | 83 | |||||||
| Витрата палива при номінальній потужності (кг/год) | 5 | 6,4 | 10 | 13 | 15,3 | 19,5 | 26 | 32,2 |
| Місткість бункера для палива, (дм3) | 215 | 240 | 340 | 380 | 460 | 540 | 620 | 620 |
| Водяна ємність котла, (л) | 82 | 117 | 152 | 192 | 222 | 268 | 398 | 473 |
| Вага казана без води, (кг) | 440 | 480 | 580 | 670 | 770 | 860 | 1170 | 1310 |
| Потрібна тяга топкових газів, (Па) | 23 — 30 | |||||||
| Температура топкових газів на виході з казана, (°C) | 100 — 180 | |||||||
| Рекомендована мінімальна температура води, (°C) | 58 | |||||||
| Максимальна температура води, (°C) | 90 | |||||||
| Номінальний (максимальний робочий) тиск води, (МПа) | 0,15 | |||||||
| Випробувальний тиск води, не більше, (МПа) | 0,30 | |||||||
| Споживання електроенергії, не більше, (Вт) | 180 | 180 | 180 | 180 | 290 | 350 | 430 | 430 |
| Приєднувальні (зовнішні) розміри бору, (мм) | 160x160 | 170x170 | 200x200 | 220x220 | 235x235 | 255x255 | 275x275 | 310x310 |
| Діаметр патрубків прямої та зворотної мережної води (Ду), (мм) | 50 | 50 | 50 | 50 | 50 | 65 | 65 | 80 |
| Рекомендовані параметри димоходу: | ||||||||
| Площа перерізу, (см2) | 225 | 256 | 361 | 441 | 506 | 600 | 702 | 900 |
| Внутрішній діаметр, (мм) | 170 | 180 | 215 | 240 | 255 | 275 | 300 | 340 |
| Висота (мінімально допустима), (м) | 5 | 5 | 5 | 6 | 6 | 7 | 7 | 7 |
| Максимальна продуктивність вентилятора, (м3/год) | 270 | 270 | 270 | 270 | 395 | 505 | 600 | 600 |
![]() | ![]() |
| Пеллета | Еко — горошок |