Завантаження...

Фасадна касета металева PE 0,7мм Україна

від 456 грн./м²
fasadnaya_kasseta1.jpg

Металеві касети — це облицювальний матеріал, різновид фасадного покриття.

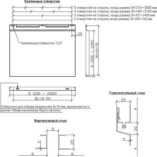
Зовнішньо є загнутою з боків завершену металеву конструкцію. Широко використовується у системі вентильованого фасаду із металевих касет. Фасадна металева касета жорстко кріпиться на саморіз до фасаду, що забезпечує цілісність облицювання на весь період її експлуатації. Використання металевих касет дозволяє компенсувати нерівність поверхні. Завдяки використанню полімерних покриттів касети з металу можуть бути виготовлені у будь-якій колірній гамі. Металеві касети не вигоряють під впливом сонячних променів і мало схильні до впливу атмосферних опадів, через що протягом тривалого часу не вимагають ремонту та фарбування.

Важливим, якщо не ключовим фактором у виборі металевих касет є їхня негорючість та антивандальні властивості. Навіть понівечену касету можна легко замінити.

Касети виробляються методом різання та згинання на високопродуктивному комп'ютеризованому обладнанні, що дозволяє досягати більшої точності та високої якості кутів, поверхонь та контурних форм.

Переваги:

Типи фасадних касет
Касета стінова відкритого типуКасета стінова закритого типу
 Технічні характеристики
Матеріал
Товщина металу, (мм)
Покриття
Розміри стандартні, (мм)
Глибина, (мм)
Витримують температуру 
Вологість повітря
Вага полімерних панелей
Холоднокатана оцинкована сталь
0.7
Polyester
min 350х350, мах 1100х2400
25
від мінус 55 °С до плюс 60 °С 
до 75 %
8-10 кг/м.кв
Виготовляються з негорючого матеріалу
У конструкції касет враховується термічне розширення матеріалу
foto_00000184.jpg

Навісний вентильований фасад із металевих касет Україна

ТОВ "Покрівельно-Фасадний Центр" виконує повний обсяг робіт, пов'язаний з улаштуванням, модернізацією та реконструкцією всіх видів вентильованого фасаду. Один із видів фасадного покриття, за допомогою якого проводиться облицювання фасаду — металеві касети.Порівняно з традиційними оштукатуреними фасадами навісний вентильований фасад із металеви...